Wir bieten Ihnen dieses architektonisch markante Einfamilienhaus mit Einliegerwohnung in top Lage von MG-Venn zum Kauf an. Die ca. 1984 errichtete Immobilie besteht aus einem zweigeschossigen, voll unterkellerten Haupthaus mit ca. 198 m² Wohnfläche und einer daran angrenzenden zweigeschossigen, nicht unterkellerten Maisonettewohnung mit ca. 38 m² Wohnfläche. Zum Haus gehört eine Doppelgarage und ein Gartenhaus.
Im Erdgeschoss des Einfamilienhauses gelangt man durch eine großzügige Diele linkerhand in den fast 50 m² großen, zum Garten hin ausgerichteten Wohnraum mit gemütlicher Kaminecke. Die angrenzende Terrasse mit einer Grundfläche von ca. 40 m² ist größtenteils überdacht und verfügt über einen Außenkamin. Rechts vom Hauseingang befinden sich die Garderobe und das Gäste-WC. Geradeaus kommt man in die Küche mit separatem Vorratsraum und angrenzendem Essplatz mit kleiner Frühstücksterrasse.
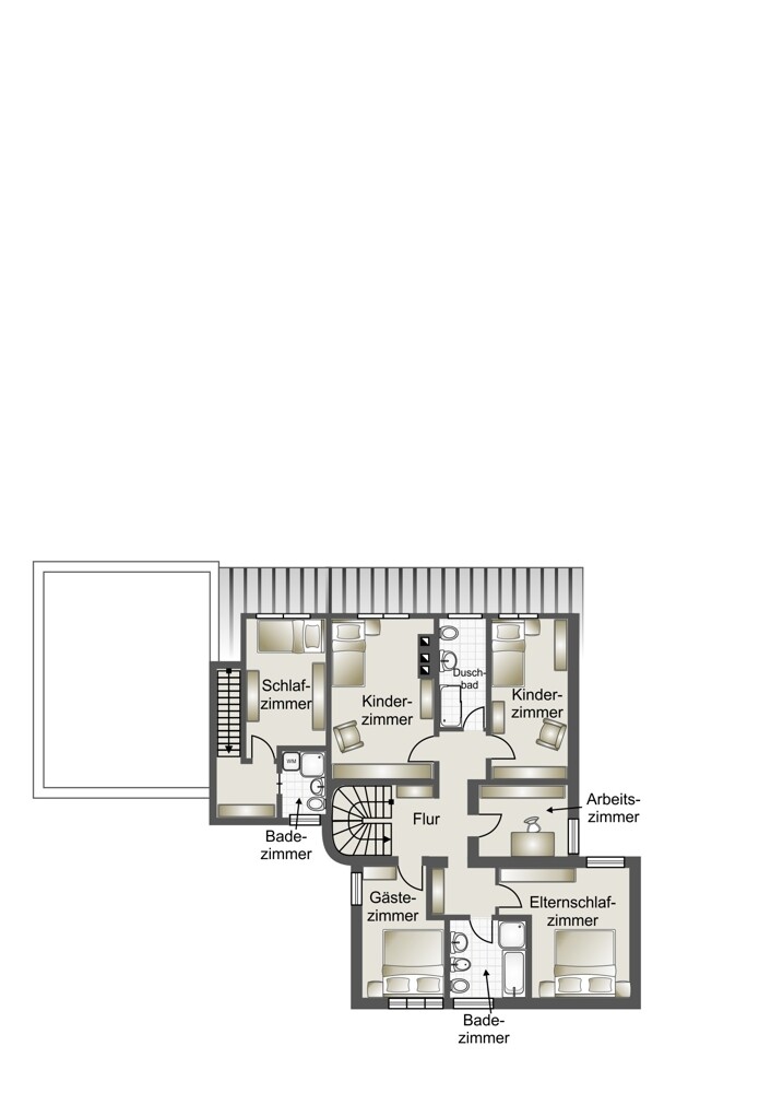
Das Haus wurde so geplant, dass es so gut wie keine tragenden Innenwände gibt, wodurch sich die Raumaufteilung optimal verändern lässt. Da das Haus für eine Familie mit vier Kindern errichtet wurde, verfügt es im Dachgeschoss über fünf Schlafzimmer. Diese können ggf. mit angrenzenden Räumen zusammengelegt oder in Arbeits- und Ankleidezimmer umgestaltet werden. Ein Eltern- und ein Kinderbad runden das Platzangebot im Dachgeschoss ab.
Im Kellergeschoss sind neben den üblichen Technikräumen und der Waschküche ein großer Hobbyraum, ein Vorratskeller sowie eine Kellerbar vorhanden.
Im Erdgeschoss der Einliegerwohnung befindet sich ein offenes Wohn-/Esszimmer sowie die Diele und eine kleine Küche. Schlafzimmer und Duschbad sind im Dachgeschoss untergebracht. Die Wohnung eignet sich ideal für ein älteres Kind, als Büro oder zur Unterbringung einer Pflegeperson.
Absolutes Highlight ist das knapp 1.000 m² große, uneinsehbare Grundstück, das nach Süden ausgerichtet ist und teils über alten Baumbestand verfügt.
Technische specificaties
- ImmoNo
- 25203
Categorie
- Type object
- Huis
- Type object
- Eengezinswoning
- Type gebruik
- Wonen
- Type marketing
- Koop
Geografische informatie
- Plaats
- Mönchengladbach
- Land
- Duitsland
Oppervlakken
- Leefruimte
- ong. 236 m²
- Bruikbaar gebied
- ong. 90 m²
- Perceelgrootte
- ong. 977 m²
- Aantal kamers
- 9
- Aantal slaapkamers
- 5
- Badkamers
- 3
- Aantal aparte wc's
- 1
- Aantal terrassen
- 1
Uitrusting
Terras
- Verwarming
- Gas
- Aantal verdiepingen
- 2
- Standplaatsen
- 2 parkeerplaatsen, 2 garages
Prijzen
- Aankoopprijs
- 698.000,00 €
- Koper commissie
- 2,975 Prozent vom beurkundeten Kaufpreis inkl. Mehrwertsteuer
Omschrijving
Afwerking: beschrijving
– Massive Bauweise mit Betondecken und Klinkerfassade
– Flach- und Pultdächer
– Gaszentralheizung
– Warmwasserversorgung zentral über die Heizung
– Holzfenster mit Doppelverglasung
– Rollläden teilweise elektrisch gesteuert
– Bodenbeläge: Fliesen, Teppichboden
– Wände verputzt und gestrichen, ansonsten Tapeten
– Decken überwiegend mit Holzverkleidung
– offener Holzkamin
– Doppelgarage mit elektrischen Toren
– Gartenhaus
Das Haus wurde laufend instandgehalten und weist eine gute Bausubstanz auf. Insgesamt besteht jedoch Modernisierungsbedarf, um die Haustechnik und die Ausstattung der Immobilie an heutige Wohnansprüche anzupassen und die Energieeffizienz zu steigern.
– Flach- und Pultdächer
– Gaszentralheizung
– Warmwasserversorgung zentral über die Heizung
– Holzfenster mit Doppelverglasung
– Rollläden teilweise elektrisch gesteuert
– Bodenbeläge: Fliesen, Teppichboden
– Wände verputzt und gestrichen, ansonsten Tapeten
– Decken überwiegend mit Holzverkleidung
– offener Holzkamin
– Doppelgarage mit elektrischen Toren
– Gartenhaus
Das Haus wurde laufend instandgehalten und weist eine gute Bausubstanz auf. Insgesamt besteht jedoch Modernisierungsbedarf, um die Haustechnik und die Ausstattung der Immobilie an heutige Wohnansprüche anzupassen und die Energieeffizienz zu steigern.
Locatie
Das Haus befindet sich im Mönchengladbacher Stadtteil Venn, der zu den besten Wohnlagen der Stadt gehört. Die verkehrsberuhigte Anliegerstraße (Tempo-30-Zone) ist nur wenig befahren.
Geschäfte des täglichen Bedarfs, Restaurants, Kitas, Schulen sowie einige schöne Hofläden sind in wenigen Minuten zu Fuß erreichbar. Die Großheide und Bockerter Heide befinden sich direkt vor der Haustür und laden zu schönen Spaziergängen oder Radtouren ein. Durch die Feldrandlage hat man keine gegenüberliegende Bebauung und dadurch einen unverbaubaren Ausblick ins Grüne.
Die Mönchengladbacher Innenstadt ist ca. 3,5 km entfernt und die Autobahnanbindung ist auch für Pendler ideal. Die Auffahrt zur A 61 (MG-Nordpark) ist schnell erreichbar und über das Autobahnkreuz MG ebenso die A 52. Die nächste Bushaltestelle ist nur ca. 200 m vom Haus entfernt.
Geschäfte des täglichen Bedarfs, Restaurants, Kitas, Schulen sowie einige schöne Hofläden sind in wenigen Minuten zu Fuß erreichbar. Die Großheide und Bockerter Heide befinden sich direkt vor der Haustür und laden zu schönen Spaziergängen oder Radtouren ein. Durch die Feldrandlage hat man keine gegenüberliegende Bebauung und dadurch einen unverbaubaren Ausblick ins Grüne.
Die Mönchengladbacher Innenstadt ist ca. 3,5 km entfernt und die Autobahnanbindung ist auch für Pendler ideal. Die Auffahrt zur A 61 (MG-Nordpark) ist schnell erreichbar und über das Autobahnkreuz MG ebenso die A 52. Die nächste Bushaltestelle ist nur ca. 200 m vom Haus entfernt.
Andere informatie
Wir bitten um Ihr Verständnis, dass wir nur schriftliche Anfragen beantworten können. Senden Sie uns bitte daher vorab Ihre Portalanfrage mit vollständiger Angabe Ihrer Kontaktdaten. Erst im Anschluss erhalten Sie einen Link zu unserem Verkaufsexposé, in dem die genaue Adresse der angebotenen Immobilie angegeben ist.
Die Käuferprovision beträgt 2,975 Prozent vom beurkundeten Kaufpreis inklusive 19 Prozent Mehrwertsteuer. Mit dem Verkäufer haben wir einen Vertrag mit gleicher Provisionshöhe geschlossen. Die Provision ist verdient und fällig mit der Beurkundung des notariellen Kaufvertrags und Rechnungsstellung.
Da wir Objektangaben nicht selbst ermitteln, übernehmen wir hierfür kein Gewähr. Änderungen, Irrtümer und Zwischenverkauf bleiben vorbehalten. Dieses Exposé ist nur für Sie persönlich bestimmt. Eine Weitergabe an Dritte ist an unsere ausdrückliche Zustimmung gebunden und unterbindet nicht unseren Provisionsanspruch bei Zustandekommen eines Vertrages. Alle Gespräche sind über unser Büro zu führen. Bei Zuwiderhandlung behalten wir uns Schadenersatz bis zur Höhe der Provisionsansprüche ausdrücklich vor. Zwischenverkauf ist nicht ausgeschlossen.
Die Käuferprovision beträgt 2,975 Prozent vom beurkundeten Kaufpreis inklusive 19 Prozent Mehrwertsteuer. Mit dem Verkäufer haben wir einen Vertrag mit gleicher Provisionshöhe geschlossen. Die Provision ist verdient und fällig mit der Beurkundung des notariellen Kaufvertrags und Rechnungsstellung.
Da wir Objektangaben nicht selbst ermitteln, übernehmen wir hierfür kein Gewähr. Änderungen, Irrtümer und Zwischenverkauf bleiben vorbehalten. Dieses Exposé ist nur für Sie persönlich bestimmt. Eine Weitergabe an Dritte ist an unsere ausdrückliche Zustimmung gebunden und unterbindet nicht unseren Provisionsanspruch bei Zustandekommen eines Vertrages. Alle Gespräche sind über unser Büro zu führen. Bei Zuwiderhandlung behalten wir uns Schadenersatz bis zur Höhe der Provisionsansprüche ausdrücklich vor. Zwischenverkauf ist nicht ausgeschlossen.
Energielabel
A+
< 30
A+
30 – 50
B
50 – 75
C
75 – 100
D
100 – 130
E
130 – 160
F
160 – 200
G
200 – 250
H
> 250
- Bouwjaar met energielabel
- 1984
- Eindenergieverbruik
- 163,6 kWh/(m²a)
- Energielabel
- Verbruikscertificaat
- Energiepas geldig tot
- 17.12.2035
- Energieklasse
- F
- essentiële energiebron
- Aardgas zwaar
Uw contactpersoon (mannelijk)
De heer Michael Otto
Otto Immobilien GmbH
- Tel.:
- +49 2161 849 84 70
- E-mail:
- info@immobilien-otto.com
Beethovenstraße 15
41061 Mönchengladbach